Re: Вопросы и ответы 2017
Shpuntik, Не, это резьбовой вал, на ХВЗ другой.
|
Крокодиловодство 2.0 |
Вы не вошли. Пожалуйста, войдите или зарегистрируйтесь.
Кроковод → Общие темы. Мастерская. Библиотека. Вопросы. → Вопросы и ответы 2017
Страницы Назад 1 … 150 151 152 153 154 … 170 Далее
Чтобы отправить ответ, вы должны войти или зарегистрироваться
Shpuntik, Не, это резьбовой вал, на ХВЗ другой.
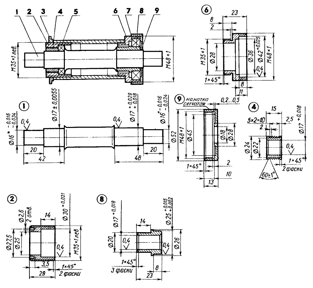
Этот чертеж?
Это резьбовой, но и за него спасибище — он тоже очень нужен!
Скоро будет понятно, зачем именно, пока пусть сюрпризом побудет. 
народ! вы на чертёж левым прищуренным глазом смотрите?
это не ХВЗ и не ММВЗшный вал
неужели сложно заметить посадки для промов 17*40*12 ?
то какой-то аматор для своей конструкции вал замутил
и чертёж выложил
он и разошёлся по просторам
а так этот чертёж энтот никому не нужен ))))
Это какой-то аматор для своей конструкции вал замутил…
Я же говорю: точно помню, что в недрах старого форума пролетел канонiчный чертёжик именно клинового, и именно безрезьбового вала ХВЗ! 
Ладно, буду дальше копать, вдруг да наткнусь?!
P.S. Спасибо!
этот? ))

Этот — самый крутой!
чертёж вала каретки ХВЗ под клинья
а зачем?
без наличия термички этот вал не изготовить
Maxim_Sed,
Ну например муфельные печи много где есть, другое дело что проводить цементацию или закалку в кустарных условиях — такое себе развлечение, проще вал найти.
то какой-то аматор для своей конструкции вал замутил
и чертёж выложил
он и разошёлся по просторам
а так этот чертёж энтот никому не нужен ))))
Он вообще ни о чём, уникальный под какую-то едничную конструкцию. Вроде когда-то в "Моделисте-Конструкторе" проскакивал перевод каретки на советские промышленные подшипники. Причём слева и справа — почему-то разные. Вот может это чертёж оттуда. Хотя конструкция достойная, но тот же Максим насочинял тучу очень удачных кареток, так что смысла в том чертеже таки нет.
kisa, вот этот чертеж:
и вот ссылка на статью, если кому будет интересно:
http://velomobil.masteraero.ru/velo-24.php
А предыдущий чертеж я, кажется, скачивал для контроля размера под клин на рабочих валах....
А зачем? Без наличия термички этот вал не изготовить.
1. А зато с наличием — запросто! 
2. Для порядка. Считаю, что нам нужно по возможности иметь чертежи всяких и всяческих узлов и деталей. Валы, клинья, звёзды, дропы и тэ дэ, и тэ пэ, так сказать.
Сейчас — это не тогда; у многих есть доступ и к лазерной резке, и к станкам с ЧПУ, и к термообработке.
Так что лучше всё это иметь, чем не иметь, как мне кажется. 
Shpuntik,
Точно — оно

Добавлено: 04-12-2017 15:43:08
лучше всё это иметь, чем не иметь, как мне кажется

Страницы Назад 1 … 150 151 152 153 154 … 170 Далее
Чтобы отправить ответ, вы должны войти или зарегистрироваться
Кроковод → Общие темы. Мастерская. Библиотека. Вопросы. → Вопросы и ответы 2017